2016年6月 Vol.2
お気に入り
趣味のお酒を呑む場として設けました。友人が来た際に楽しめるスペースと、キッチン近くに設けることで利便性を高めました。
おすすめ
夫婦共働きである為、時間短縮と物干しスペースの確保を考えました。水廻りがまとまっていることで、今まで以上にスムーズに家事が行えています。
こだわり
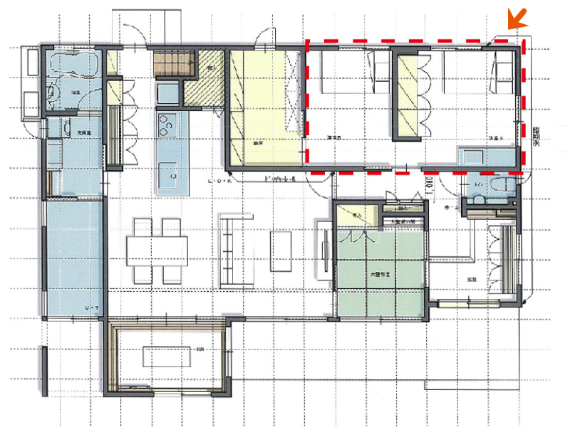
起床時間が異なる為、双方のプライベートを確保しつつ、気配を感じられる寝室の配置となっております。
木の質感と耐震性、耐久性、営業の方の対応の良さで決めました。
2016年6月
三重県四日市市
| 家族構成: | ご主人(50代)、奥様(50代) |
|---|---|
| 延床面積: | 121.73m²(36.82坪) |
| 敷地面積: | 660.32m²(199.75坪) |
私たちが大切にしていたことは、木の雰囲気でした。住友林業さんの展示場は、落ちついた木の雰囲気と居心地の良さを感じ、一目惚れしたのを覚えています。木の種類が多く、どの床材にするのか非常に悩んだこともありました。また、地震に強いビッグフレーム構法・後々お金がかからない仕様・長持ちする点も選んだ理由です。多数の住宅メーカーがある中で、わからないことがたくさんあり不安でしたが、営業マンの方からわかりやすく説明して頂けましたので、安心してメーカー決定が出来ました。
お気に入り
おすすめ
こだわり

土地の利用計画から、趣味と家事動線を実現した平屋のお住まい。
敷地が大きく、将来お子様が建てられるような利用計画を考えました。その中で、ゆったり住まわれる平屋のご希望を頂いておりました。ご主人様の強い願いであった趣味の部屋・奥様の強い願いであった時間を短縮できる家事動線を両立。また、ご夫婦間で生活のリズムが異なる為、寝室と水廻りを離すなど、音の問題にも配慮し、間取りをご提案致しました。
住友林業
中村 亮太